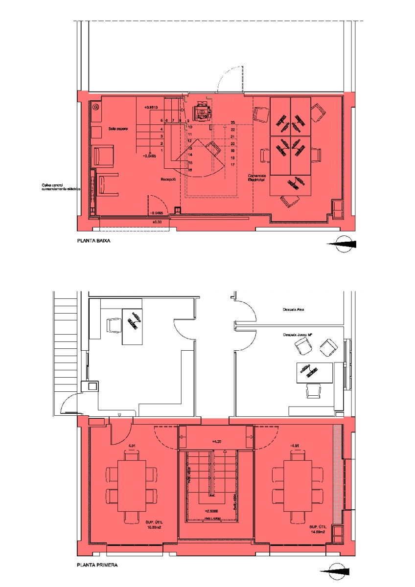
Dins de les instal·lacions de l’empresa Hubelsa dedicada a la fabricació de cuines i equipament per la llar, en la nau central es planifica una nova zona d’exposició més gran de l’existent en planta baixa i la situació de les noves oficines d’administració i atenció al públic en un dels extrems de la nau que comuniqui la planta baixa d’exposició amb la planta alta amb les oficines de direcció existents.
Es fa la proposta de situar una escala centrada en l’espai previst que faci d’organitzador dels espais creant a costat i costat les diferents zones que demana el programa. Amb la situació de l’escala se centren totes les circulacions en l’eix i en planta baixa apareix en un costat l’accés des de l’exterior i a l’altre costat la zona d’administració. En planta primera a costat i costat se situen dues sales de reunions que serveixen tant per les reunions dels despatxos de planta primera com pels clients o proveïdors.
L’escala es dissenya com si estigués recolzada de la planta primera amb estructura metàl·lica i arribant a un podi de planta baixa que organitza l’accés, la zona d’espera i deixa lliure el pas cap a la sala central d’exposicions per sota d’ella.
Els materials d’acabat intenten donar llum a tots els espais amb molta finestra orientada a nord que aconsegueix una il·luminació controlada, però a la vegada suficient per a les activitats a desenvolupar i amb lames de fusta per controlar el so en els espais de planta baixa i l’escala.

