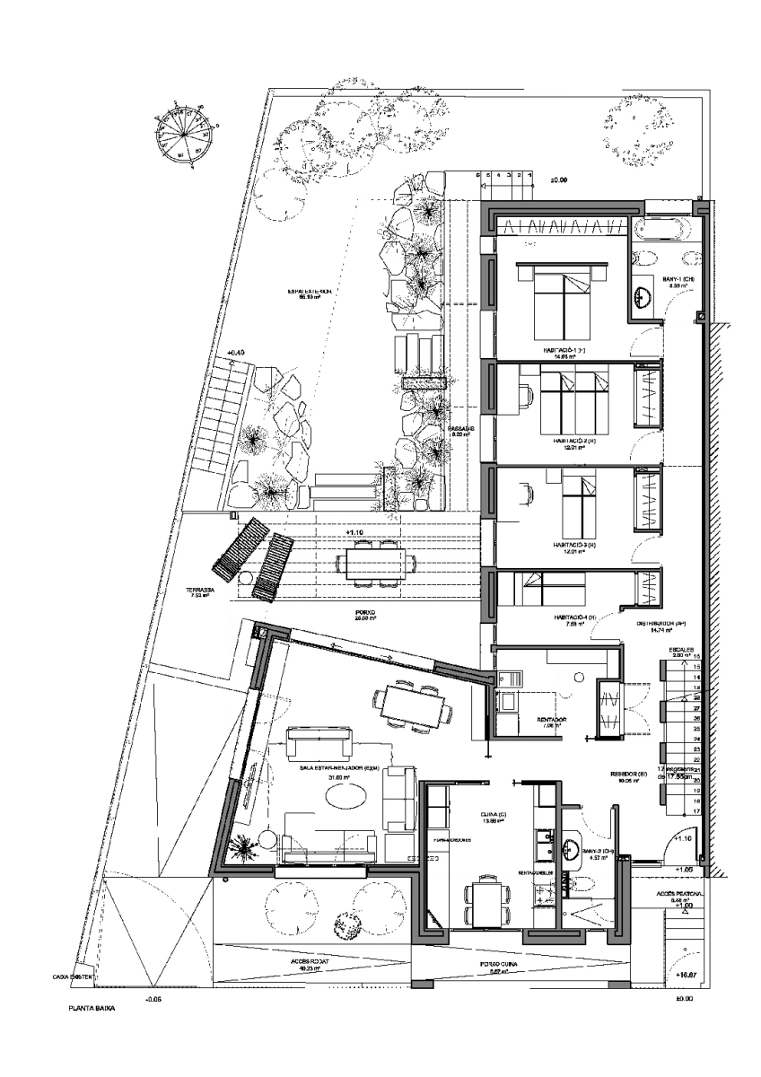
Habitatge situat en cantonada situat al final d’un conjunt de cases adossades amb distribució per deixar la parcel·la més oberta i lliure al sol i les bones orientacions. Amb altes prestacions degudes amb els bons aïllaments i els tancaments amb altes prestacions. La seva forma compacta i a la vegada oberta a la captació solar fan de la seva forma un recurs pel bon comportament climàtic.

