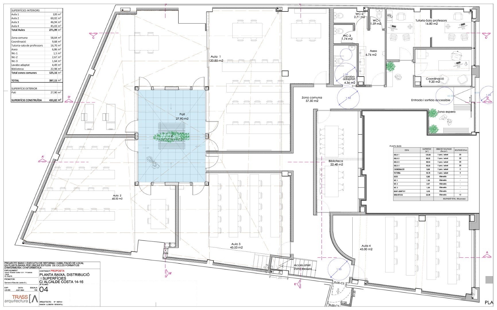
El projecte consisteix en l’ampliació de l’actual edifici central del centre de formació professional amb un local de planta baixa annex per la creació de noves aules per nous mòduls professionals. Es la reforma de un local amb una part inicial sota el bloc d’habitatges i un altra part que queda sota un pati de llums interior.
La proposta es la creació d’un pati de llums central amb una dimensió suficient per que es converteixi en l’element central de l’ampliació i disposar al seu voltant les diferents aules, que fan servir aquest pati com element de ventilació i il·luminació i a la vegada com nou centre “social” i de relació entre els diferents espais de la proposta. Al costat dels patis es situen uns altells d’instal·lacions que utilitzen també el pati com element de ventilació i relació. També s’havia de fer de manera que fos una distribució flexible treballant amb uns espais interiors de diferents alçades i que permetin dividir les aules en espais dinàmics i diferenciats en funció de les diferents activitats a realitzar-hi.
Es fa una proposta en que s’intenta aprofitar al màxim els elements existent afegint materials i capes a lo que ja hi ha en el lloc entre ells l’estructura metàl·lica existent que suporta la coberta lleugera perforant només en el lloc del pati i creant una estructura suplementària en el perímetre del pati que arriostra l’existent, afegint capes per aconseguir els alts estàndards tèrmics i acústics que reclamen unes aules d’aquestes característiques i amb materials naturals com la fusta, la llana de roca mineral i els panells de fusta acústica per millorrar les prestacions acústiques.

