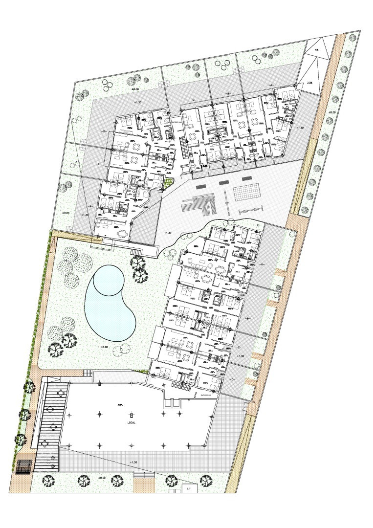
Edifici amb soterrani semisoterrat per aparcament, planta baixa d’habitatges amb jardí interior i amb diferents tipologies per planta amb accés per passera. Aprofitament de l’espai lliure interior amb terrasses o petit jardí privat en alguns habitatges de planta baixa i resta amb zona comunitària amb piscina. Les plantes superiors tenen accés a una terrassa sota coberta-solàrium d’ús exclusiu. .
La situació dels dos blocs en una forma de dues C encarades respon a una configuració per poder dotar de l’espai interior restant amb el màxim esglaiament tant de la zona de piscina com dels elements comunitaris de joc… Es preserven de les vistes de l’altre bloc, situat a nord i del carrer i obre l’espai interior a sud i a l’espia que no hi ha cap altre bloc edificat. S’aixeca el nivell de la planta baixa per poder posar un aparcament ventilat naturalment amb menys rampa i per evitar el nivell freàtic que es troba molt a prop i donant privacitat a les plantes baixes. Les tipologies d’apartaments tots d’ells amb ventilació creuada a través d’accessos de passera i per aconseguir menys nuclis de comunicació vertical.
Els acabats de façana intenten combinar en els seus colors amb una arquitectura mediterrània de diferents elements i colors amb vegetació, pèrgoles i llocs d’ombreig en les zones comunes.

